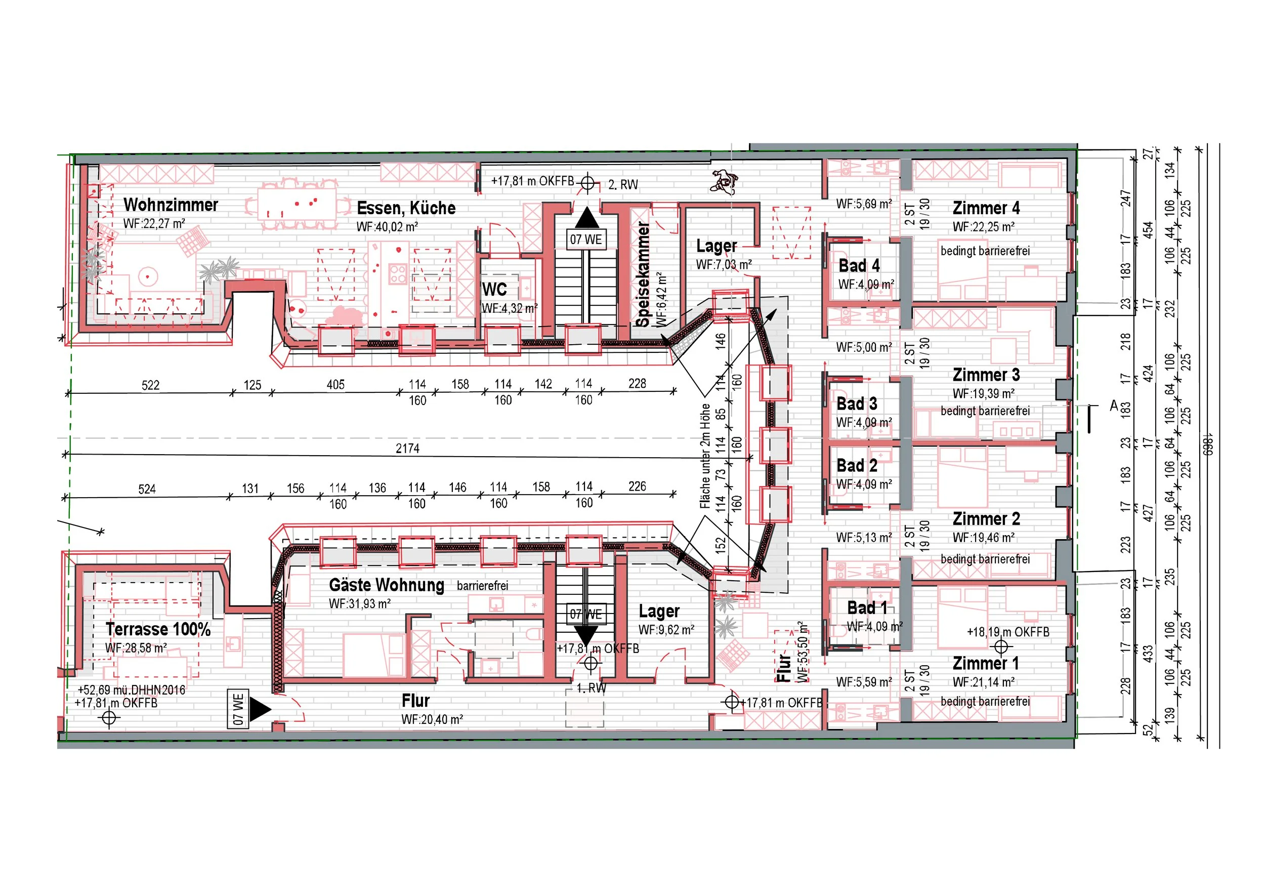
Die aktuelle Planung sieht vier beinahe identische Schlafzimmer vor mit jeweils einem privaten Badezimmer. Ein fünftes Zimmer könnte entweder ein Gästezimmer werden oder eine weitere Partei aufnehmen. Zusätzlich teilen sich alle Bewohner eine über 60m² Wohnküche mit Speisekammer und Lagerräumen sowie eine Terrasse.

Wenn das Timing stimmt, könnte auf dem Dachbereich des Neubaus ROTE CHARLOTTE im Gartenbereich - ebenfalls als Baugruppen-Projekt geplant - Zugang zu einer weiteren Gäste-Wohnung sowie zu einer Gemeinschafts-Sauna entstehen.