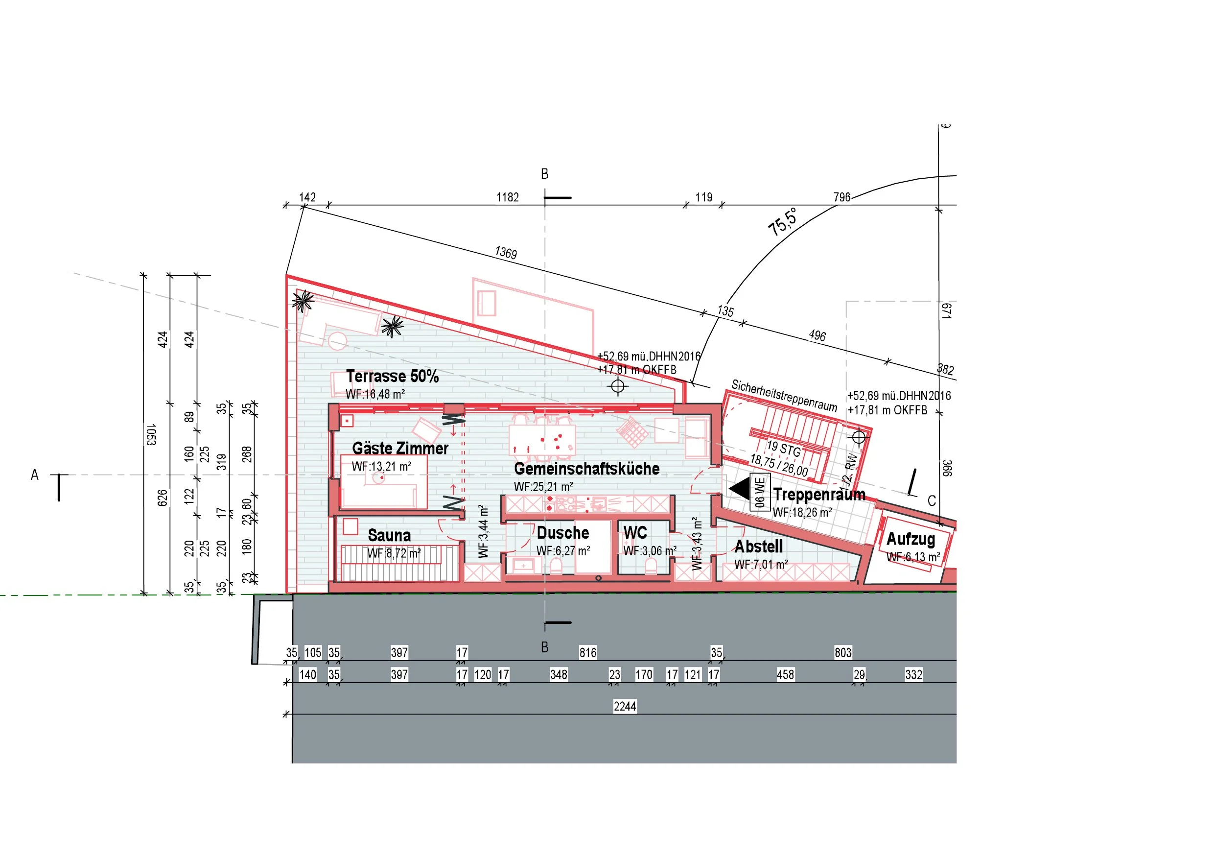
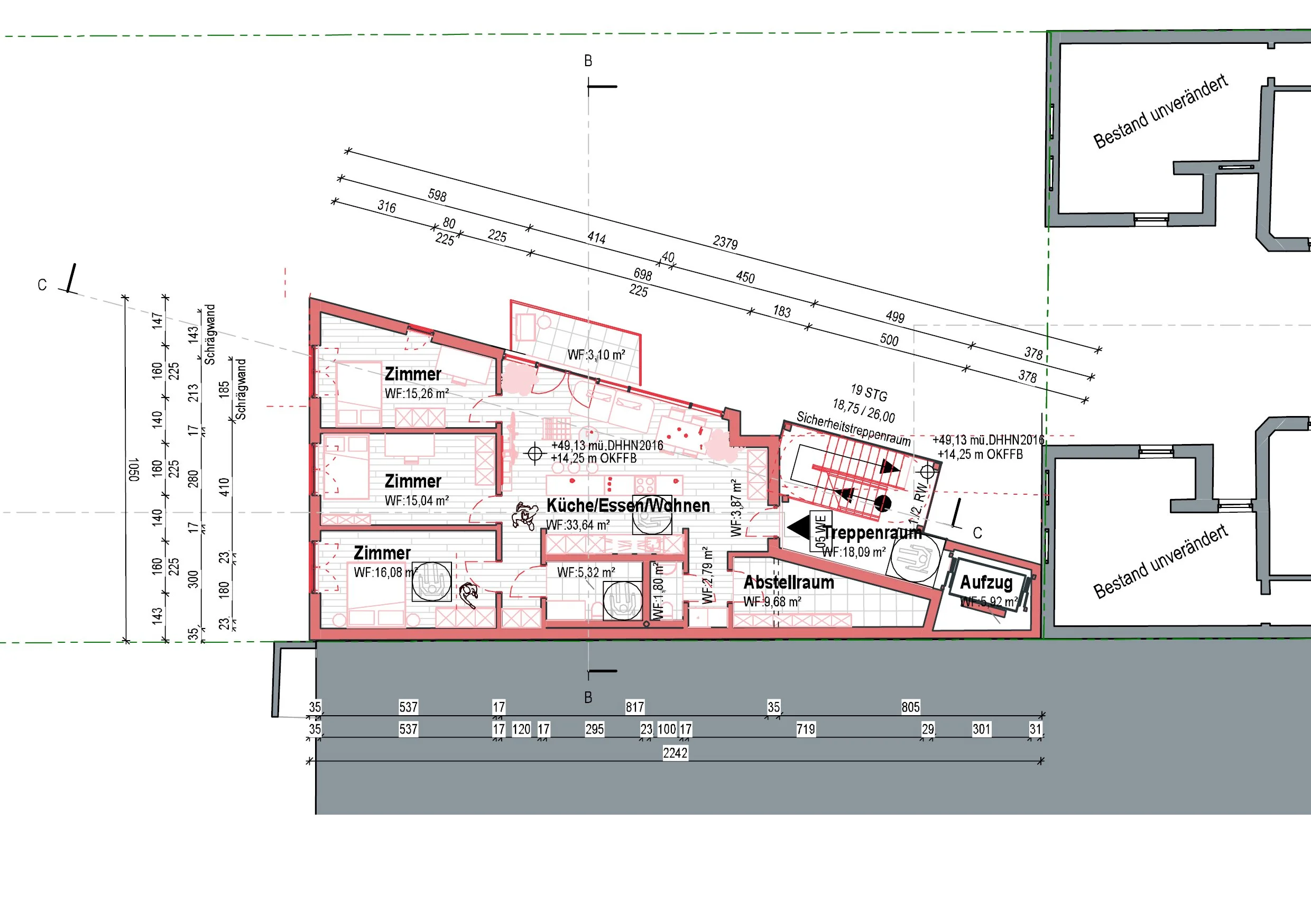
Die aktuelle Planung sieht fünf identische 4-Zimmer-Wohnungen mit je 110m² Wohnfläche vor. Zusätzlich teilen sich alle Bewohner das Dachgeschoss mit einer 30m² großen Sonnenterrasse, einem 30m² großen Gemeinschaftsraum, einer Gäste-Wohnung und einer Sauna.

Alle Wohnungen bekommen eine großzügige Wohnküche mit anschließendem 6m² großem Balkon, drei Schlafzimmer, ein Badezimmern sowie ein Gäste-WC. Zusätzlich zur großen Abstellkammer gibt es ein Abteil im Keller. Der Fahrstuhl hält direkt auf der Etage, sodass die Wohnungen barrierefrei sind.

Das gesamte Dachgschoss bleibt in der Hand der Gemeinschaft. Die Fenster des Neubaus sind nach Osten und Norden ausgerichtet, wenn die Sonne mittags über den zenit schreitet, können die bewohner ihr Leben ins oberste Geschoss verlegen. Die Kinder können dort Hausaufgaben machen, wer im Home Office arbeitet, nimmt ein kurzes Sonnenbad. Und abends bietet die Gemeinschaftsküche genügend Raum für Festivitäten, Get-Together oder Filmabende.

Eine Gäste-Wohnung kann Familienmitglieder oder anderweitigen Besuch beherbergen und die Sauna sorgt für einen relaxten Tagesabschluss.